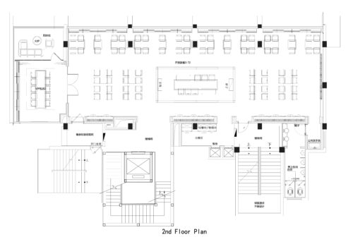
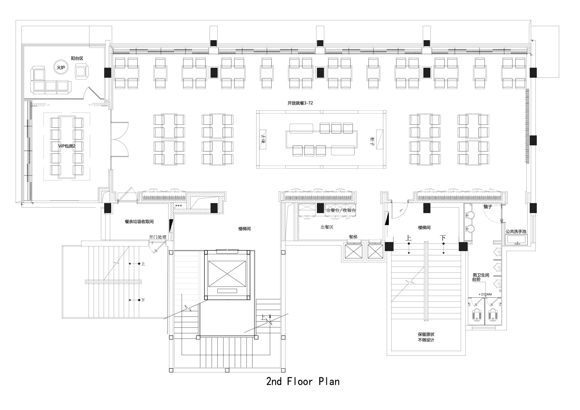
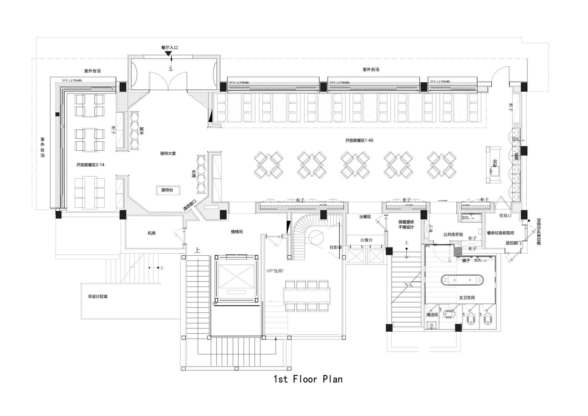
Yahui Chinese BBQ, Ezhou

At Yahui, the rituals of Chinese BBQ are translated directly into architecture. A monumental wall of illuminated green beer bottles forms the restaurant’s visual anchor — a nod to the inseparable pairing of beer and barbecue in Chinese dining culture. Interspersed among the green bottles, clear bottles subtly trace a large “Y”, the first initial of Yahui, embedding branding into the architecture rather than applying it as signage.

The interior unfolds as a sequence of layered spaces, intensified through reflection and repetition. A vivid red tiled stair introduces movement and pulse, while mirrored brick, glass, polished stone, and metal surfaces multiply perspectives, allowing diners to glimpse adjacent rooms, silhouettes, and shifting light. Space is never static; it overlaps, reflects, and refracts.

Overhead, the ceiling becomes a familiar yet unexpected feature. Suspended metal trays — commonly used in Chinese BBQ restaurants to deliver grilled dishes to the table — are reassembled into a graphic ceiling installation. Repetition transforms the utilitarian into the architectural, turning a functional object into a defining visual language.

Together, these elements elevate the everyday rituals of Chinese BBQ into a spatial experience. Bold, graphic, and unapologetically immersive, Yahui is conceived as dining-as-theatre — where beer, fire, movement, and reflection shape an environment that is as ritualistic as it is memorable.

  • GROSS AREA 600 sqm
  • STATUS Complete
  • COMPLETION DATE Oct 2025
  • DURATION Aug 2024 - Feb 2025
  • ADDRESS No. 65 Nanpu Road, Echeng District, Ezhou, Hubei, China