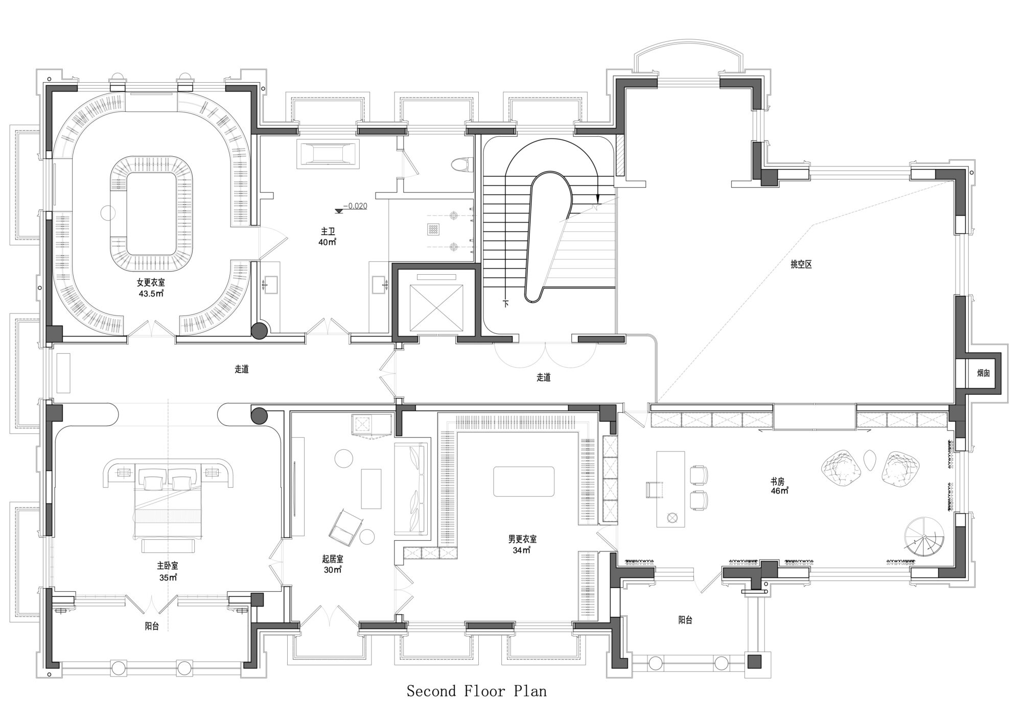
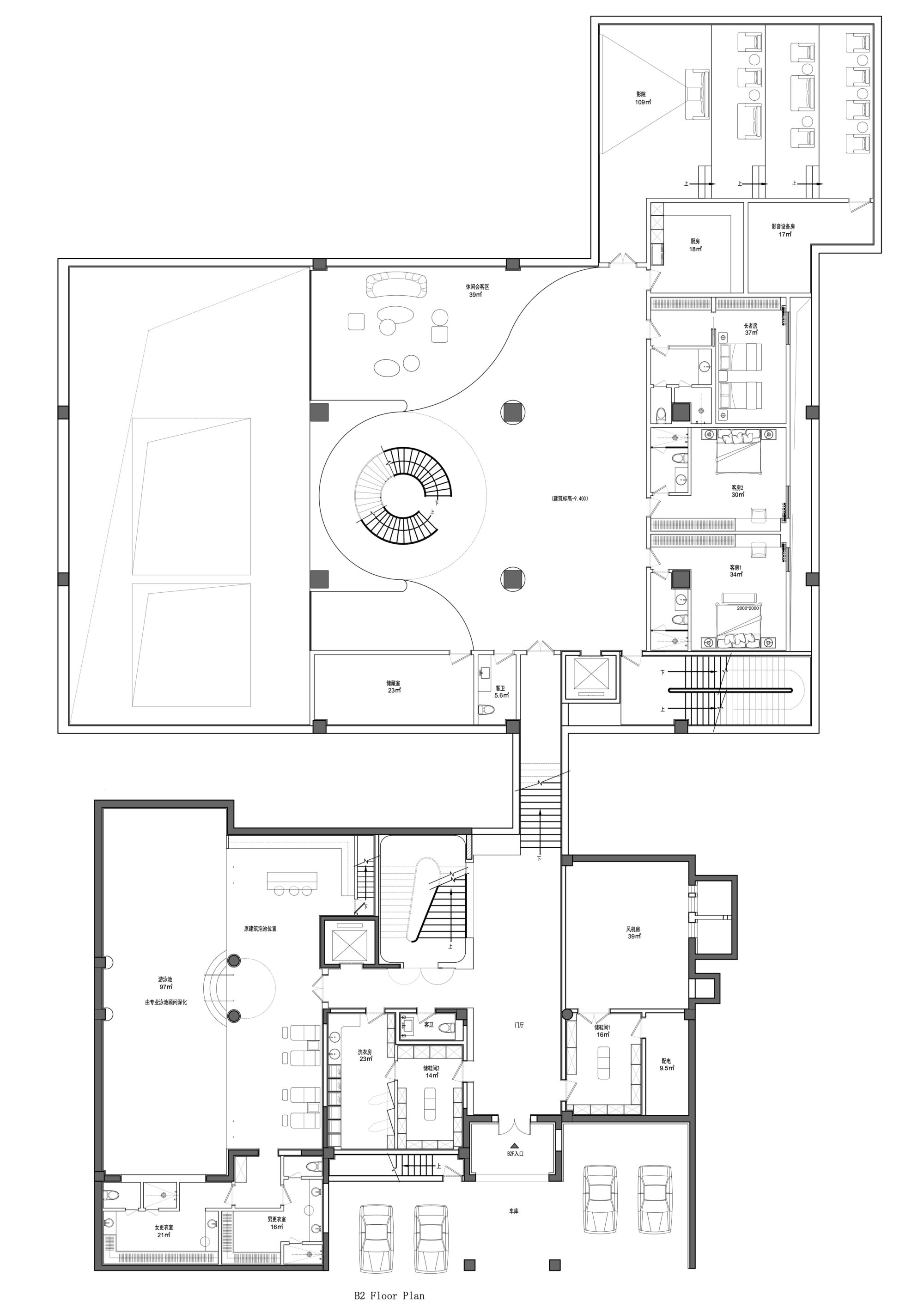
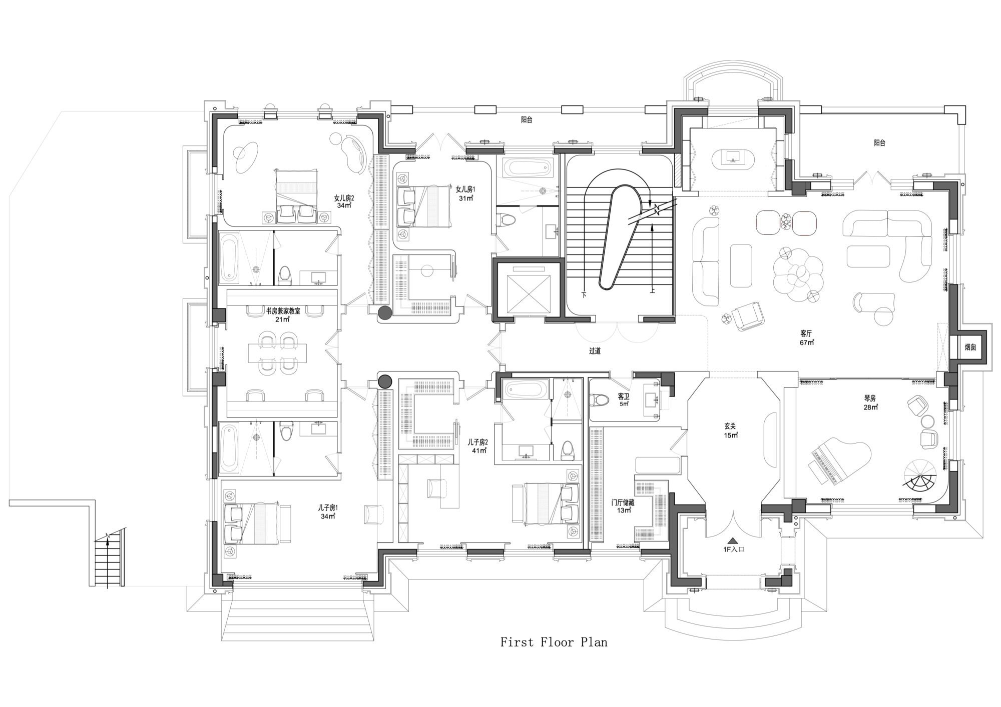
private villa, beijing
StudioGlam’s 5,000-square-meter Beijing villa takes a distinctly modern stance on Chinese luxury, stripping away ornament in favour of sculptural clarity and controlled warmth. The double-height salon anchors the project with a suspended installation of amber glass petals — part lighting, part spatial graphic — casting a calibrated glow across low, architectural seating and monolithic stone surfaces.
Cultural references are distilled to their essentials: a frame rhythm, a softened grid, a curved silhouette. Nothing literal. Nothing nostalgic. Just a quiet acknowledgement of context.
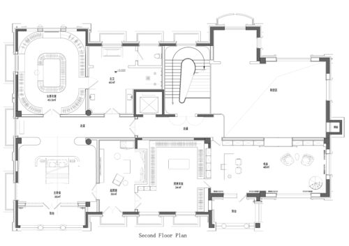
The piano room reads cooler and more meditative, defined by deep greens, lacquer-black accents, and a glass-block ceiling that diffuses daylight into a muted field of texture. A spiralling stair becomes the key design gesture, offering movement and vertical tension.
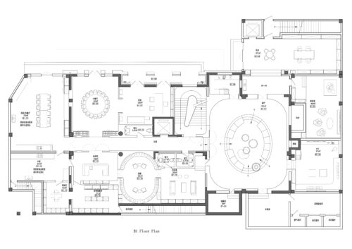
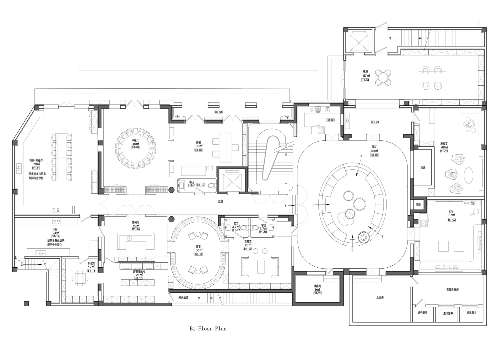
In the main stair hall, golden droplets form a floating constellation above ink-washed treads, while the dining room expands into a continuous botanical mural.
The result is precise, refined, and unmistakably contemporary Chinese.

























